Provisionsfrei: 3-Raumwohnung mit Balkon Mechthildstraße 51, 39128 Magdeburg
Details:
| Objektart: | Wohnung |
|---|---|
| Kaufpreis: | 78.000,00 € |
| Hausgeld: | 212,00 € |
| Kaufpreis Stellplatz: | 0,00 € |
| Grunderwerbsteuer: | 3.900,00 € |
| Notar: | 1.170,00 € |
| Grundbuchamt: | 390,00 € |
| Provision: | € |
| Gesamtkosten: | 83.460,00 € |
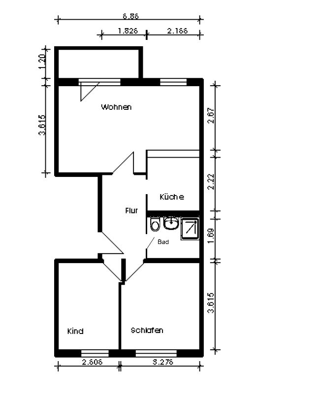
| Wohnfläche: | 56,80 m² |
|---|---|
| Zimmer: | 2,5 |
| Etage: | 2 |
| Heizungsart: | Fernwärme |
Wohnungsmerkmale:
| Bad mit Dusche | Balkon | ||
|---|---|---|---|
| Offene Küche | Keller |
Energieausweis:
| Energieeffizienzklasse: | C |
|---|---|
| End-Energiewert: | 92,00 kWh/(m²*a) |
| Baujahr des Objektes: | 1978 |
| Wesentlicher Energieträger: | Fernwärme |
| Energieverbrauch für Warmwasser enthalten: | Ja |
| Erstellungsdatum: | 22.01.2025 |
| Energieausweisart: | Energiebedarfsausweis |
Weitere Informationen zur Wohnung
- lichtdurchflutete 3-Zimmer-Wohnung
- 2. Etage, 56.80 m²
- offene Küche im amerikanischen Stil
- innenliegendes Bad mit Dusche
- Balkon u. Keller vorhanden
- Sanierung der Fassade u. Dach im Jahr 2021
Objektbeschreibung
Das Motto, nicht Leben sondern Wohlfühlen, hat wohl seinen Ursprung im Neustädter Feld gefunden, denn hier trifft Jung auf Alt und Freizeit auf alle:
- Jugendtreffs
- Seniorentreff
- Kinderkrippe- und Garten
- Schulen
- Sportvereine
- Kleingärten
- Nachbarschaftszentrum
- Bürgerverein
- Einkaufsmöglichkeiten
Lage und Umgebung
Das Wohngebiet Neustädter Feld zeichnet sich durch eine gute Infrastruktur aus. Verschiedene Lebensmittel-Discounter, soziale Einrichtungen, sowie eine erstklassige medizinische Versorgung macht das Stadtgebiet zum Viertel der kurzen Wege.
Wohnberechtigungsschein erforderlich!
Hinweis zur Nutzung von Cookies
Um die interaktive Karte zu laden, akzeptieren Sie bitte die Nutzung von Cookies von Google Analytics und Google Maps. Weitere Hinweise finden Sie in unserer Datenschutzerklärung.
Ansprechpartner
MWG-Wohnungsgenossenschaft eG Magdeburg
Breiter Weg 25
39104 Magdeburg
Telefon: 0391/5698-270
Fax: 0391/5698-590
Objektanfrage
Noch Fragen zu diesem Angebot? Füllen Sie bitte das Kontaktformular aus, damit wir Ihre Anfrage schnellstmöglich bearbeiten können.
Passende Wohnung noch nicht gefunden?
Sagen Sie uns, wie Ihre Traumwohnung aussieht - wir helfen Ihnen beim Suchen!
Zur Wunschwohnung


















