Attraktive 2-Raumwohnung sucht neuen Mieter in 2026 Lumumbastraße 18, 39126 Magdeburg
Details:
| Objektart: | Wohnung |
|---|---|
| Kaltmiete: | 286,74 € |
| Nebenkosten: | 79,22 € |
| Vorauszahlung warme Betriebskosten: | 56,86 € |
| Gesamtmiete: | 422,82 € |
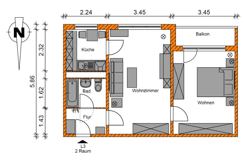
| Wohnfläche: | 48,60 m² |
|---|---|
| Zimmer: | 2 |
| Etage: | 10 |
| Heizungsart: | Fernwärme |
Wohnungsmerkmale:
| Bad mit Wanne | Personen-Aufzug | ||
|---|---|---|---|
| Aufzug | Balkon | ||
| Keller |
Energieausweis:
| Energieeffizienzklasse: | C |
|---|---|
| End-Energiewert: | 4,51 kWh/(m²*a) |
| Baujahr des Objektes: | 1975 |
| Wesentlicher Energieträger: | Fernwärme |
| Energieverbrauch für Warmwasser enthalten: | Ja |
| Erstellungsdatum: | 02.12.2014 |
| Energieausweisart: | Energiebedarfsausweis |
Objektbeschreibung
Das umfassend modernisierte Objekt verfügt über einen ebenerdigen Aufzug und großzügige Balkone. Der weitläufig begrünte Innenhof ist mit verschiedenen Spielgeräten (z.B. einer Schaukel) ausgestattet. Dort befindet sich auch eine Stellplatzanlage, auf der bei Bedarf separat Stellplätze angemietet werden können. Der Fußweg zur Stellplatzanlage beträgt ca. 7-8 min.
Lage und Umgebung
Neustädter See - das Naherholungsgebiet direkt vor der Tür!
Das Stadtgebiet Neustädter See befindet sich im Norden der Elbestadt. Die Bezeichnung dieses Wohngebietes hat den Ursprung durch den damaligen Abbau von Kies und dem daraus entstandenem See. In der wärmeren Jahreszeit wird dieser als Badesee genutzt.
Das Wohngebiet zeichnet sich durch eine gute Infrastruktur aus. Verschiedene Lebensmittel-Discounter, der Bäcker um die Ecke, kleinere Einzelhandelsgeschäfte macht das Stadtgebiet zum Viertel der kurzen Wege. Viele soziale Einrichtungen sowie Kindergärten und Schulen oder Seniorentreffs und Mietertreffs sorgen dafür, dass der Neustädter See sowohl bei Jung und Alt beliebt ist. Der nah gelegene See ist auch Grundlage für viele Freizeitmöglichkeiten. So lädt die Umgebung zum Spazieren und Radtouren ein und im Sommer können sich Sportbegeisterte im Wasserski üben.
Die Straßenbahn bringt die Anwohner bis fast direkt vor die Tür. Mit dem Auto benötigen Sie etwa 15 Minuten bis ins Stadtzentrum. In wenigen Minuten ist ebenfalls der Magdeburger Ring und die Autobahn zu erreichen.
Hinweis zur Nutzung von Cookies
Um die interaktive Karte zu laden, akzeptieren Sie bitte die Nutzung von Cookies von Google Analytics und Google Maps. Weitere Hinweise finden Sie in unserer Datenschutzerklärung.
Ansprechpartner
MWG-Wohnungsgenossenschaft eG Magdeburg
Breiter Weg 25
39104 Magdeburg
Telefon: 0391 / 5698 200
Fax: 0391 - 56 98 59 0
Objektanfrage
Noch Fragen zu diesem Angebot? Füllen Sie bitte das Kontaktformular aus, damit wir Ihre Anfrage schnellstmöglich bearbeiten können.
Passende Wohnung noch nicht gefunden?
Sagen Sie uns, wie Ihre Traumwohnung aussieht - wir helfen Ihnen beim Suchen!
Zur Wunschwohnung












