Bezugsfertige Wohnung sucht neuen Lieblingsmieter Othrichstraße 14, 39128 Magdeburg
Details:
| Objektart: | Wohnung |
|---|---|
| Kaltmiete: | 334,83 € |
| Nebenkosten: | 96,48 € |
| Vorauszahlung warme Betriebskosten: | 65,83 € |
| Gesamtmiete: | 497,14 € |
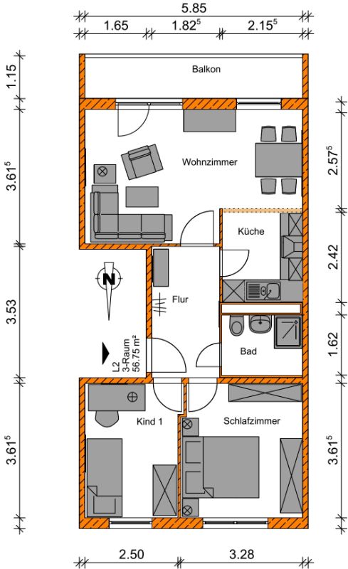
| Wohnfläche: | 56,75 m² |
|---|---|
| Zimmer: | 3 |
| Etage: | 5 |
| Heizungsart: | Fernwärme |
Wohnungsmerkmale:
| Bad mit Wanne | Balkon | ||
|---|---|---|---|
| Offene Küche | Keller |
Energieausweis:
| Energieeffizienzklasse: | C |
|---|---|
| End-Energiewert: | 4,90 kWh/(m²*a) |
| Baujahr des Objektes: | 1980 |
| Wesentlicher Energieträger: | Fernwärme |
| Energieverbrauch für Warmwasser enthalten: | Ja |
| Erstellungsdatum: | 03.12.2014 |
| Energieausweisart: | Energiebedarfsausweis |
Objektbeschreibung
Das ruhig gelegene Objekt ist umfassend saniert. Die Westbalkone versprechen zahlreiche Sonnenstunden. Alle Wohnungen besitzen einen offen Wohn- und Essbereich. Innerhalb kürzester Zeit ist man auf dem Magdeburger Ring und im Zentrum.
Öffentliche Stellflächen sind direkt vor dem Haus vorhanden.
Lage und Umgebung
Neustädter Feld - nicht nur Leben sondern Wohlfühlen
In diesem Stadtgebiet trifft sich Jung und Alt, denn für jede Altersgruppe hat das 'Feld' etwas zu bieten. Familien fühlen sich hier wohl, da es zahlreiche Kinderkrippen und Kindergärten gibt. Auch die unterschiedlichen Schulformen sind hier vertreten. Sportvereine und Jugendtreffs sorgen dafür, dass die Jugend auch nach der Schule Beschäftigungsmöglichkeiten hat. Die ältere Generation schätzt die Seniorentreffs und das Nachbarschaftszentrum sowie die erstklassige medizinische Versorgung.
Mit dem Auto benötigen Sie etwa 15 Minuten bis in die Altstadt Magdeburgs. In wenigen Minuten erreichen Sie mit dem PKW den Stadtring sowie die Autobahn. Der Bus ist im Neustädter Feld allgegenwärtig und bringt jeden ans Ziel oder zur nächsten Weiterfahrmöglichkeit.
Das Wohngebiet zeichnet sich durch eine gute Infrastruktur aus. Verschiedene Lebensmittel-Discounter und die Nähe zum Flora-Park sorgen dafür, dass keine Einkaufswünsche offen bleiben.
Hinweis zur Nutzung von Cookies
Um die interaktive Karte zu laden, akzeptieren Sie bitte die Nutzung von Cookies von Google Analytics und Google Maps. Weitere Hinweise finden Sie in unserer Datenschutzerklärung.
Ansprechpartner
MWG-Wohnungsgenossenschaft eG Magdeburg
Breiter Weg 25
39104 Magdeburg
Telefon: 0391 / 5698 200
Fax: 0391 - 56 98 59 0
Objektanfrage
Noch Fragen zu diesem Angebot? Füllen Sie bitte das Kontaktformular aus, damit wir Ihre Anfrage schnellstmöglich bearbeiten können.
Passende Wohnung noch nicht gefunden?
Sagen Sie uns, wie Ihre Traumwohnung aussieht - wir helfen Ihnen beim Suchen!
Zur Wunschwohnung














