Bezugsfertige Wohnung - WBS erforderlich! Otto-Nagel-Straße 8, 39128 Magdeburg
Details:
| Objektart: | Wohnung |
|---|---|
| Kaltmiete: | 218,70 € |
| Nebenkosten: | 62,70 € |
| Vorauszahlung warme Betriebskosten: | 40,46 € |
| Gesamtmiete: | 321,86 € |
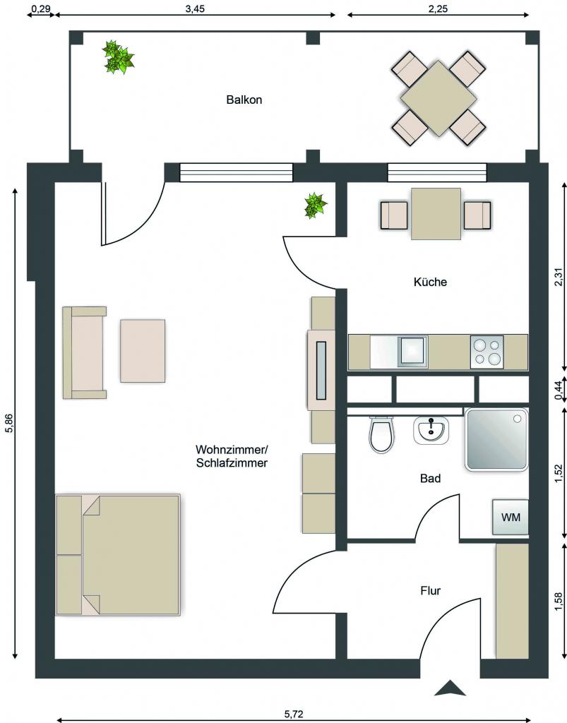
| Wohnfläche: | 36,45 m² |
|---|---|
| Zimmer: | 1 |
| Etage: | 2 |
| Heizungsart: | Fernwärme |
Wohnungsmerkmale:
| Bad mit Dusche | Personen-Aufzug | ||
|---|---|---|---|
| Aufzug | Balkon | ||
| WBS erforderlich | Keller | ||
| Glasfaser | TV Grundversorgung |
Energieausweis:
| Energieeffizienzklasse: | C |
|---|---|
| End-Energiewert: | 85,40 kWh/(m²*a) |
| Baujahr des Objektes: | 1979 |
| Wesentlicher Energieträger: | Fernwärme |
| Energieverbrauch für Warmwasser enthalten: | Ja |
| Erstellungsdatum: | 02.12.2004 |
| Energieausweisart: | Energiebedarfsausweis |
Lage und Umgebung
Kannenstieg - Wohnen im Grünen, Leben in der Stadt
Das Stadtgebiet überzeugt durch seine Kinderfreundlichkeit und Vielfalt an Sozialen Einrichtungen. So finden Familien eine Vielzahl an Spielplätzen. Die Nähe zur Grund- und Sekundarschule ist ein weiterer Vorteil im Kannenstieg. Auch viele Kinder- und Freizeiteinrichtungen sorgen dafür, dass sich hier vordergründig Familien niederlassen. Verschiedene Fachärzte und Altenzentren sind aber auch für Senioren ein Anreiz.
Der Stadtumbau zeigt sich hier besonders. Ein Großteil der dortigen Wohnhäuser wurde modernisiert. Weiterhin entstanden durch Rück- und Umbau attraktive Wohnungen. Viele Einfamilienhäuser sind dort nach der Wende gebaut worden. Die Bewohner schätzen vor allem die Ruhe im Stadtgebiet.
Die gute Verkehrsanbindung ist ein weiteres Argument für diesen Stadtteil. Der Magdeburger Ring, die Nähe zur Autobahn sowie die Bus- und Bahnverbindungen vor Ort lassen kaum Wünsche offen. Auch der Einkauf ist schnell erledigt. Entweder wählt man die kurzen Wege zum Bäcker und Supermarkt um die Ecke oder nutzt den Flora-Park, um nach Herzenslust zu shoppen.
Hinweis zur Nutzung von Cookies
Um die interaktive Karte zu laden, akzeptieren Sie bitte die Nutzung von Cookies von Google Analytics und Google Maps. Weitere Hinweise finden Sie in unserer Datenschutzerklärung.
Ansprechpartner
MWG-Wohnungsgenossenschaft eG Magdeburg
Breiter Weg 25
39104 Magdeburg
Telefon: 0391 / 5698 200
Fax: 0391 - 56 98 59 0
Objektanfrage
Noch Fragen zu diesem Angebot? Füllen Sie bitte das Kontaktformular aus, damit wir Ihre Anfrage schnellstmöglich bearbeiten können.
Passende Wohnung noch nicht gefunden?
Sagen Sie uns, wie Ihre Traumwohnung aussieht - wir helfen Ihnen beim Suchen!
Zur Wunschwohnung







