Charmante 2-Raumwohnung sucht liebenswerte Mieter Quittenweg 58, 39118 Magdeburg
Details:
| Objektart: | Wohnung |
|---|---|
| Kaltmiete: | 345,52 € |
| Nebenkosten: | 89,83 € |
| Gesamtmiete: | 515,31 € |
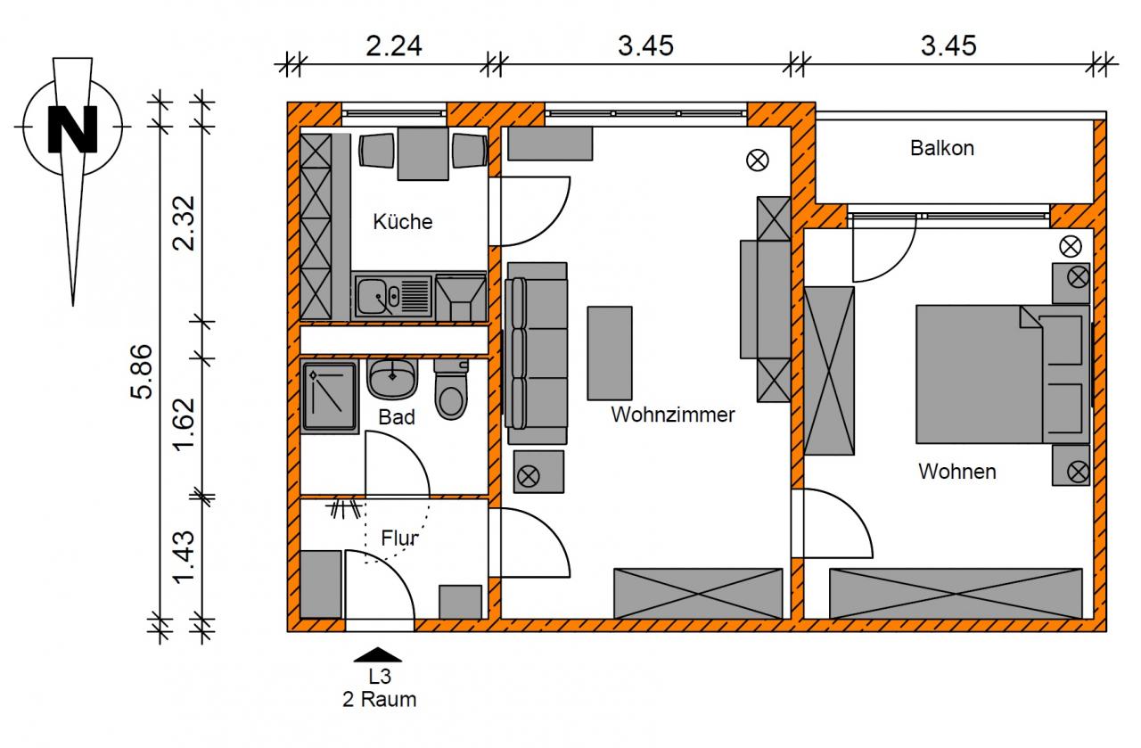
| Wohnfläche: | 49,36 m² |
|---|---|
| Zimmer: | 2 |
| Etage: | 9 |
| Heizungsart: | Gas |
Wohnungsmerkmale:
| Bad mit Dusche | Personen-Aufzug | ||
|---|---|---|---|
| Aufzug | Balkon |
Energieausweis:
| Energieeffizienzklasse: | B |
|---|---|
| End-Energiewert: | 75,20 kWh/(m²*a) |
| Baujahr des Objektes: | 1973 |
| Wesentlicher Energieträger: | Gas |
| Energieverbrauch für Warmwasser enthalten: | Ja |
| Erstellungsdatum: | 24.07.2020 |
| Energieausweisart: | Energiebedarfsausweis |
Objektbeschreibung
Das voll modernisierte Objekt verfügt über einen Aufzug sowie gemütliche Südbalkone. In unmittelbarer Nähe ist eine Stellplatzanlage. Hier kann bei Bedarf und Verfügbarkeit eine Stellplatz separat angemietet werden.
Lage und Umgebung
Reform - hier trifft sich Jung und Alt.
Im Süden der Landeshauptstadt befindet sich der Stadtteil Reform. Nur wenige Stadtteile können darauf verweisen, über jede soziale Einrichtung zu verfügen, die der Mensch braucht.
Familien sind begeistert über die Vielzahl an Kindergärten und unterschiedlichen Schulformen. Denn hier wird das Baby bis zur Abireife gleich um die Ecke betreut und Kinder haben 32 Spielplätze, um sich auszutoben. Den Senioren gefällt vor allem die medizinische Versorgung, die keine Wünsche offen lässt.
Mit dem nahegelegenen Einkaufszentrum Bördepark ist die Fahrt in die Stadt zum Einkaufen nicht zwingend notwendig und so findet der Reformer alles, was er zum Leben braucht in der Nähe. Auch die Verkehrsanbindung zum Magdeburger Ring und die A14 garantiert, dass jeder ankommt, wo er möchte. Auch mit der Straßenbahn oder dem Bus hat man verschiedene Möglichkeiten, seine Ziele zu erreichen.
Hinweis zur Nutzung von Cookies
Um die interaktive Karte zu laden, akzeptieren Sie bitte die Nutzung von Cookies von Google Analytics und Google Maps. Weitere Hinweise finden Sie in unserer Datenschutzerklärung.
Ansprechpartner
MWG-Wohnungsgenossenschaft eG Magdeburg
Breiter Weg 25
39104 Magdeburg
Telefon: 0391 / 5698 200
Fax: 0391 - 56 98 59 0
Objektanfrage
Noch Fragen zu diesem Angebot? Füllen Sie bitte das Kontaktformular aus, damit wir Ihre Anfrage schnellstmöglich bearbeiten können.
Passende Wohnung noch nicht gefunden?
Sagen Sie uns, wie Ihre Traumwohnung aussieht - wir helfen Ihnen beim Suchen!
Zur Wunschwohnung












