Deine neue Wohnung - einziehen und glücklich werden Waagestraße 12, 39118 Magdeburg
Details:
| Objektart: | Wohnung |
|---|---|
| Kaltmiete: | 409,78 € |
| Nebenkosten: | 101,27 € |
| Vorauszahlung warme Betriebskosten: | 83,13 € |
| Gesamtmiete: | 594,18 € |
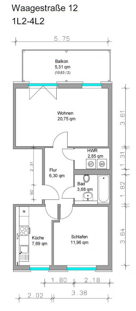
| Wohnfläche: | 58,54 m² |
|---|---|
| Zimmer: | 2 |
| Etage: | 2 |
| Heizungsart: | Fernwärme, Gas |
Wohnungsmerkmale:
| Bad mit Dusche | Balkon | ||
|---|---|---|---|
| Keller |
Energieausweis:
| Energieeffizienzklasse: | C |
|---|---|
| End-Energiewert: | 57,84 kWh/(m²*a) |
| Baujahr des Objektes: | 2009 |
| Wesentlicher Energieträger: | Fernwärme |
| Energieverbrauch für Warmwasser enthalten: | Ja |
| Erstellungsdatum: | 08.12.2014 |
| Energieausweisart: | Energiebedarfsausweis |
Objektbeschreibung
Im Süden der Landeshauptstadt befindet sich der Stadtteil Reform. Hier stimmt einfach alles. Nur wenige Stadtteile können darauf verweisen, über jede soziale Einrichtung zu verfügen, die der Mensch braucht. Reform hat sie. Auch hinsichtlich der Freizeitgestaltung hat dieser Stadtteil einiges zu bieten.
Lage und Umgebung
In Reform wird Familie groß geschrieben Hier wird das Baby bis zur Abireife gleich um die Ecke betreut und hat 32 Spielplätze um sich auszutoben. Auch die medizinische Versorgung lässt keine Wünsche offen. Mit den nahegelegenem Einkaufszentrum Bördepark ist die Fahrt in die Stadt zum Einkaufen nicht zwingend notwendig und so findet der Reformer alles was er zum Leben braucht in der Nähe.
Hinweis zur Nutzung von Cookies
Um die interaktive Karte zu laden, akzeptieren Sie bitte die Nutzung von Cookies von Google Analytics und Google Maps. Weitere Hinweise finden Sie in unserer Datenschutzerklärung.
Ansprechpartner
MWG-Wohnungsgenossenschaft eG Magdeburg
Breiter Weg 25
39104 Magdeburg
Telefon: 0391 / 5698 200
Fax: 0391 - 56 98 59 0
Objektanfrage
Noch Fragen zu diesem Angebot? Füllen Sie bitte das Kontaktformular aus, damit wir Ihre Anfrage schnellstmöglich bearbeiten können.
Passende Wohnung noch nicht gefunden?
Sagen Sie uns, wie Ihre Traumwohnung aussieht - wir helfen Ihnen beim Suchen!
Zur Wunschwohnung










