Deinen persönlichen Wohntraum findest du hier Hohepfortestraße 59, 39106 Magdeburg
Details:
| Objektart: | Wohnung |
|---|---|
| Kaltmiete: | 309,26 € |
| Nebenkosten: | 86,87 € |
| Gesamtmiete: | 444,79 € |
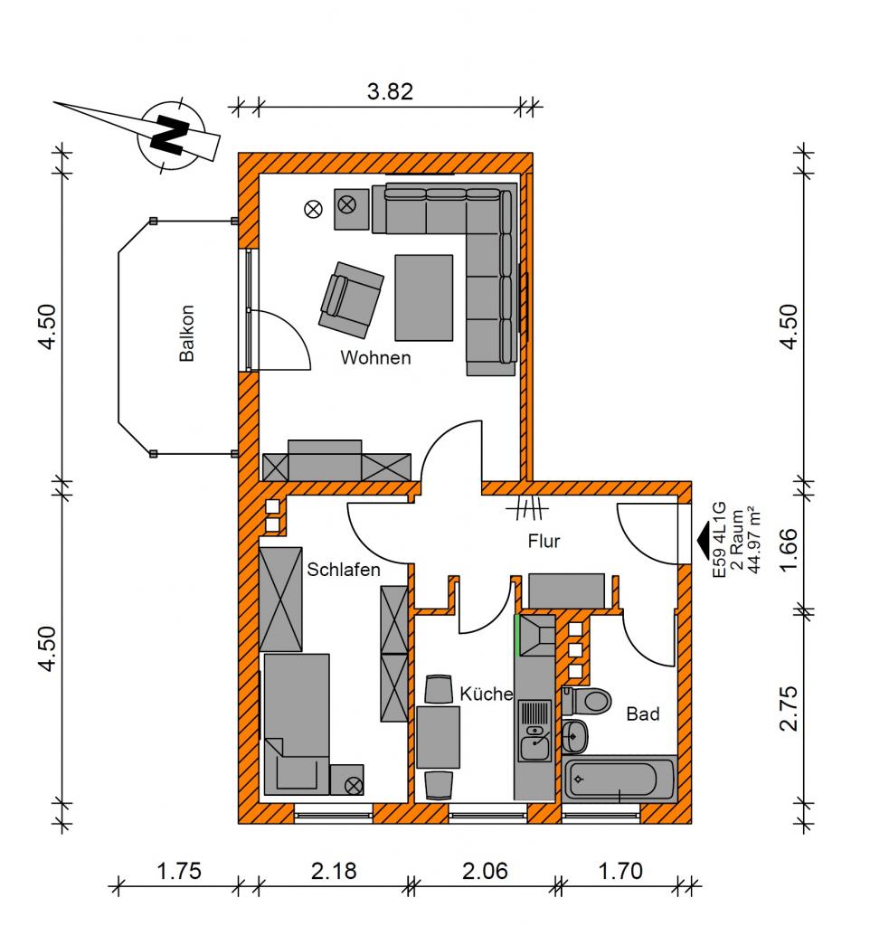
| Wohnfläche: | 45,48 m² |
|---|---|
| Zimmer: | 2 |
| Etage: | 4 |
| Heizungsart: | Öl |
Wohnungsmerkmale:
| Bad mit Wanne | Bad mit Fenster | ||
|---|---|---|---|
| Kunststoff-Fußboden | Balkon |
Energieausweis:
| Energieeffizienzklasse: | D |
|---|---|
| End-Energiewert: | 118,96 kWh/(m²*a) |
| Baujahr des Objektes: | 1960 |
| Wesentlicher Energieträger: | |
| Energieverbrauch für Warmwasser enthalten: | Ja |
| Erstellungsdatum: | 02.12.2014 |
| Energieausweisart: | Energiebedarfsausweis |
Objektbeschreibung
Mit dem Nordpark direkt vor der Tür ist dieses Objekt besonders grün gelegen. Auch von den großzügigen Balkonen blickt man ins Grüne. Alle Wohnungen sind mit einer Gastherme für die Warmwasseraufbereitung ausgestattet. Weiterhin ist ein Gasherdanschluss vorhanden. Die Gaskosten werden direkt über den Versorger abgerechnet.
Im MWG eigenen Kindergarten ist Ihr Kind direkt um die Ecke bestens betreut. Für Familien ebenfalls interessant ist das nahegelegene Familienhaus. Dort finden zahlreiche Veranstaltungen statt.
Öffentliche Stellflächen sind direkt vor dem Haus vorhanden.
Lage und Umgebung
Alte Neustadt - ruhig und trotzdem zentrumsnah.
Die grünen Lungen des Stadtgebietes sind der 10.000 Quadratmeter große Nordpark und der Geschwister-Scholl-Park, welche besonders im Frühjahr und Sommer zum Verweilen und Entspannen einladen.
Zahlreiche Spielplätze, Kindereinrichtungen und Kinderärzte sind vordergründig für den Umzug von Familien in diesen Stadtteil verantwortlich. Gleichzeitig ist dieses Stadtgebiet auch bei Studenten äußerst beliebt. Grund ist die Otto-von-Guericke-Universität, die jedes Jahr eine Vielzahl von Studiumsanfängern hat.
In Sachen Verkehrsanbindung trumpft dieser Stadtteil mit 6 Bahnlinien auf und ist somit eines der Besten. In die Innenstadt braucht man mit der Straßenbahn nur einige Minuten. Für Nachtschwärmer sorgt der Nachtverkehr für ungeahnte Möglichkeiten. Auch die Nähe zum Magdeburger Ring ist ein weiterer Pluspunkt für dieses Stadtgebiet.
Hinweis zur Nutzung von Cookies
Um die interaktive Karte zu laden, akzeptieren Sie bitte die Nutzung von Cookies von Google Analytics und Google Maps. Weitere Hinweise finden Sie in unserer Datenschutzerklärung.
Ansprechpartner
MWG-Wohnungsgenossenschaft eG Magdeburg
Breiter Weg 25
39104 Magdeburg
Telefon: 0391 / 5698 200
Fax: 0391 - 56 98 59 0
Objektanfrage
Noch Fragen zu diesem Angebot? Füllen Sie bitte das Kontaktformular aus, damit wir Ihre Anfrage schnellstmöglich bearbeiten können.
Passende Wohnung noch nicht gefunden?
Sagen Sie uns, wie Ihre Traumwohnung aussieht - wir helfen Ihnen beim Suchen!
Zur Wunschwohnung








