Ein Ort für die ganze Familie Bebertaler Straße 3, 39124 Magdeburg
Details:
| Objektart: | Wohnung |
|---|---|
| Kaltmiete: | 418,76 € |
| Nebenkosten: | 113,00 € |
| Gesamtmiete: | 615,00 € |
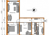
| Wohnfläche: | 66,47 m² |
|---|---|
| Zimmer: | 3 |
| Etage: | 8 |
| Heizungsart: | Gas |
Wohnungsmerkmale:
| Bad mit Dusche | Bad mit Fenster | ||
|---|---|---|---|
| Personen-Aufzug | Aufzug | ||
| Balkon | Keller |
Energieausweis:
| Energieeffizienzklasse: | C |
|---|---|
| End-Energiewert: | 90,54 kWh/(m²*a) |
| Baujahr des Objektes: | 1969 |
| Wesentlicher Energieträger: | Gas |
| Energieverbrauch für Warmwasser enthalten: | Ja |
| Erstellungsdatum: | 01.12.2014 |
| Energieausweisart: | Energiebedarfsausweis |
Objektbeschreibung
Ruhig in einer Anliegerstraße gelegen befindet sich dieses sanierte Objekt. Von den Südbalkonen blickt man Richtung Innenstadt.
Öffentliche Stellflächen sind vor dem Haus verfügbar.
Lage und Umgebung
Die Neue Neustadt - ein Wohnviertel zum Wohlfühlen.
Zwischen den grünen Oasen Zoologischer Garten, Neustädter Friedhof und
Vogelgesangpark befindet sich eine der geschäftigsten Magistralen Magdeburgs, die Lübecker Straße. Der Stadtteil Neue Neustadt ist nach der Altstadt und Sudenburg die drittgrößte Einkaufsmeile. Hier findet man über Bäcker und Fleischer, Supermärkten und Drogerien und zahlreiche andere Geschäfte auch kleine Gaststätten, die zum Essen einladen.
Ein Anreiz für die älteren Menschen, sich für eine Wohnung in diesem Stadtgebiet zu entscheiden, sind die zahlreichen Allgemeinmediziner. Sie garantieren eine super medizinische Versorgung direkt vor der Haustür. Aber auch junge Leute sind hier gut beraten. Innerhalb kurzer Zeit ist man an der Universität und mit dem Nachtverkehr steht auch keiner Partynacht etwas im Wege.
Die Straßenbahn ist allgegenwärtig. Zahlreiche Bahnlinien bringen die Anwohner an ihr Ziel. Aber auch mit dem Auto ist man schnell auf dem Magdeburger ring und der Autobahn. Rund um eine top Verkehrsanbindung.
Hinweis zur Nutzung von Cookies
Um die interaktive Karte zu laden, akzeptieren Sie bitte die Nutzung von Cookies von Google Analytics und Google Maps. Weitere Hinweise finden Sie in unserer Datenschutzerklärung.
Ansprechpartner
MWG-Wohnungsgenossenschaft eG Magdeburg
Breiter Weg 25
39104 Magdeburg
Telefon: 0391 / 5698 200
Fax: 0391 - 56 98 59 0
Objektanfrage
Noch Fragen zu diesem Angebot? Füllen Sie bitte das Kontaktformular aus, damit wir Ihre Anfrage schnellstmöglich bearbeiten können.
Passende Wohnung noch nicht gefunden?
Sagen Sie uns, wie Ihre Traumwohnung aussieht - wir helfen Ihnen beim Suchen!
Zur Wunschwohnung









