Hier wird saniert - bezugsfertig ab Mitte Februar 2026 Willi-Bredel-Straße 21, 39120 Magdeburg
Details:
| Objektart: | Wohnung |
|---|---|
| Kaltmiete: | 393,18 € |
| Nebenkosten: | 119,29 € |
| Gesamtmiete: | 608,43 € |
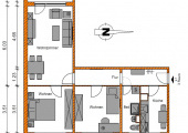
| Wohnfläche: | 66,64 m² |
|---|---|
| Zimmer: | 3 |
| Etage: | 3 |
| Heizungsart: | Gas |
Wohnungsmerkmale:
| Bad mit Dusche | Bad mit Fenster | ||
|---|---|---|---|
| Personen-Aufzug | Aufzug | ||
| Balkon | Keller |
Energieausweis:
| Energieeffizienzklasse: | C |
|---|---|
| End-Energiewert: | 92,31 kWh/(m²*a) |
| Baujahr des Objektes: | 1971 |
| Wesentlicher Energieträger: | Gas |
| Energieverbrauch für Warmwasser enthalten: | Ja |
| Erstellungsdatum: | 03.12.2014 |
| Energieausweisart: | Energiebedarfsausweis |
Objektbeschreibung
Das ruhig gelegene Mietobjekt ist umfassend saniert und besticht durch seine Nähe zur Universitätsklinik Magdeburg. Die Balkone sind gen Westen gerichtet und man blickt ins Grüne.
Öffentliche Stellplätze sind vor dem Haus vorhanden. Es kann jedoch auch bei Bedarf und Verfügbarkeit auf der direkt vor dem Objekt liegenden Stellplatzanlage ein Stellplatz separat angemietet werden.
Lage und Umgebung
Leipziger Straße - keine bloße Straßenbezeichnung
Das Stadtgebiet Leipziger Straße gilt als südliche Vorstadt des Zentrums von Magdeburg. Viele kleine Geschäfte, zahlreiche Supermärkte, die Passage an der Semmelweisstraße oder der nicht weit entfernte Börde-Park bieten den Bewohnern dieses Stadtgebietes viele unterschiedliche Einkaufsmöglichkeiten. Einen Besuch wert ist das Technikmusuem.
Die Universitätsklinik im Herzen der Leipziger Straße garantiert eine sehr gute medizinische Versorgung und ist zugleich Ausbildungs- und Arbeitsort vieler Magdeburger.
Durch einen ausgezeichneten öffentlichen Personennahverkehr, zahlreiche Radwege und ein gut ausgebautes Straßennetz ist hier jedes Ziel schnell und unkompliziert zu erreichen.
Hinweis zur Nutzung von Cookies
Um die interaktive Karte zu laden, akzeptieren Sie bitte die Nutzung von Cookies von Google Analytics und Google Maps. Weitere Hinweise finden Sie in unserer Datenschutzerklärung.
Ansprechpartner
MWG-Wohnungsgenossenschaft eG Magdeburg
Breiter Weg 25
39104 Magdeburg
Telefon: 0391 / 5698 200
Fax: 0391 - 56 98 59 0
Objektanfrage
Noch Fragen zu diesem Angebot? Füllen Sie bitte das Kontaktformular aus, damit wir Ihre Anfrage schnellstmöglich bearbeiten können.
Passende Wohnung noch nicht gefunden?
Sagen Sie uns, wie Ihre Traumwohnung aussieht - wir helfen Ihnen beim Suchen!
Zur Wunschwohnung











